Home #1

The Phipe home
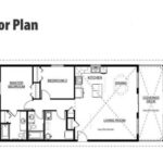
1 BEDROOm
1 BATH
price:$32,000
Down Payment:$2300
Reservation fee $750
Financing and rent to own available
Message us directly
SIZE: 15′-2″ x 50′-0*
LIVING AREA: 667 SQ. FT.
PORCH AREA: 91 SQ. FT.
home comes with a full bath, sink and washer and dryer hook ups
Comes with every appliances as seen on photos.